
Projet Tatami

TYPE DE PROJET : Rénovation d’un studio à la montagne
ANNÉE : 2024
LOCALISATION : Grenoble
SUPERFICIE : 20 m²
CONCEPT : @louisegarnier_archi
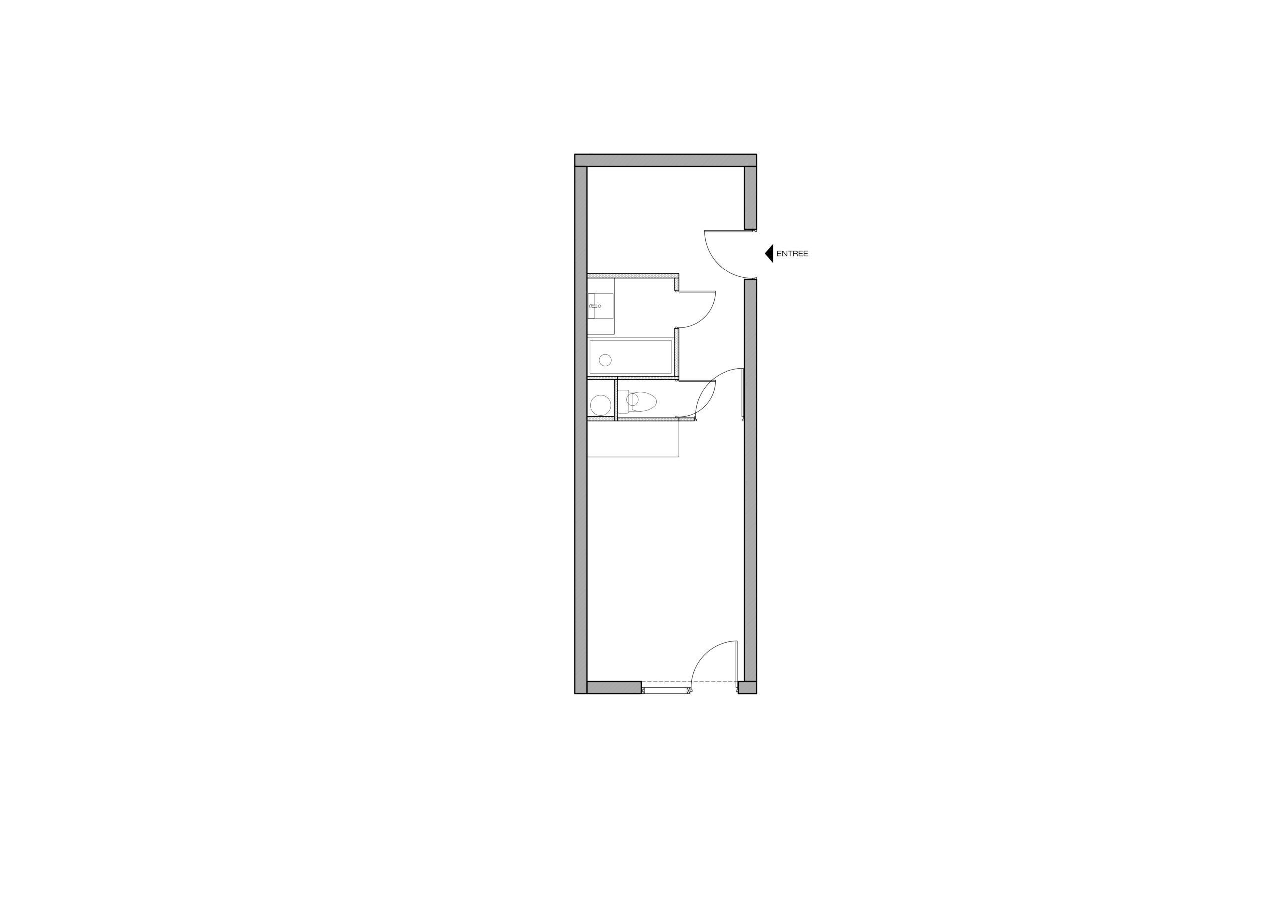
Pour ce projet, j’ai été sollicitée afin de repenser entièrement un studio de moins de 20 m² doté d’une belle baie vitrée, baignant l’espace de lumière naturelle.
L’objectif principal était d’optimiser intelligemment chaque m², tout en créant une ambiance apaisante et épurée, inspirée de l’esthétique japonaise.

Le client souhaitait dormir à même un tatami, en harmonie avec le style minimaliste qu’il affectionne. Cette contrainte volontaire m’a permis de libérer de l’espace au sol et de renforcer la fluidité des circulations.
Le projet s’est articulé autour de plusieurs objectifs :
- Créer un espace cuisine fermé pour séparer sans cloisonner excessivement.
- Intégrer une salle d’eau compacte mais fonctionnelle.
- Maximiser les rangements pour préserver une atmosphère épurée, sans sacrifier la praticité au quotidien.
L’ensemble a été pensé avec des lignes simples, des matériaux naturels et des tons neutres pour renforcer la sensation de calme et de légèreté. Chaque élément a été conçu sur mesure pour s’adapter à l’espace et au mode de vie du client, en restant fidèle à l’esprit japonais : sobriété, fonctionnalité et harmonie.



Vous avez un projet en tête ?
Chaque projet est unique, tout comme les personnes pour lesquelles je travaille. Mon objectif est de transformer vos idées en réalité, en créant des espaces qui vous ressemblent et dans lesquels vous vous sentez bien. De la conception initiale à la réalisation finale, je suis à vos côtés à chaque étape, pour vous offrir un service personnalisé et sur mesure.