
Projet Monkey

TYPE DE PROJET : Aménagement d’un appartement
ANNÉE : 2024
LOCALISATION : Caluire
SUPERFICIE : 77 m²
CONCEPT : @louisegarnier_archi
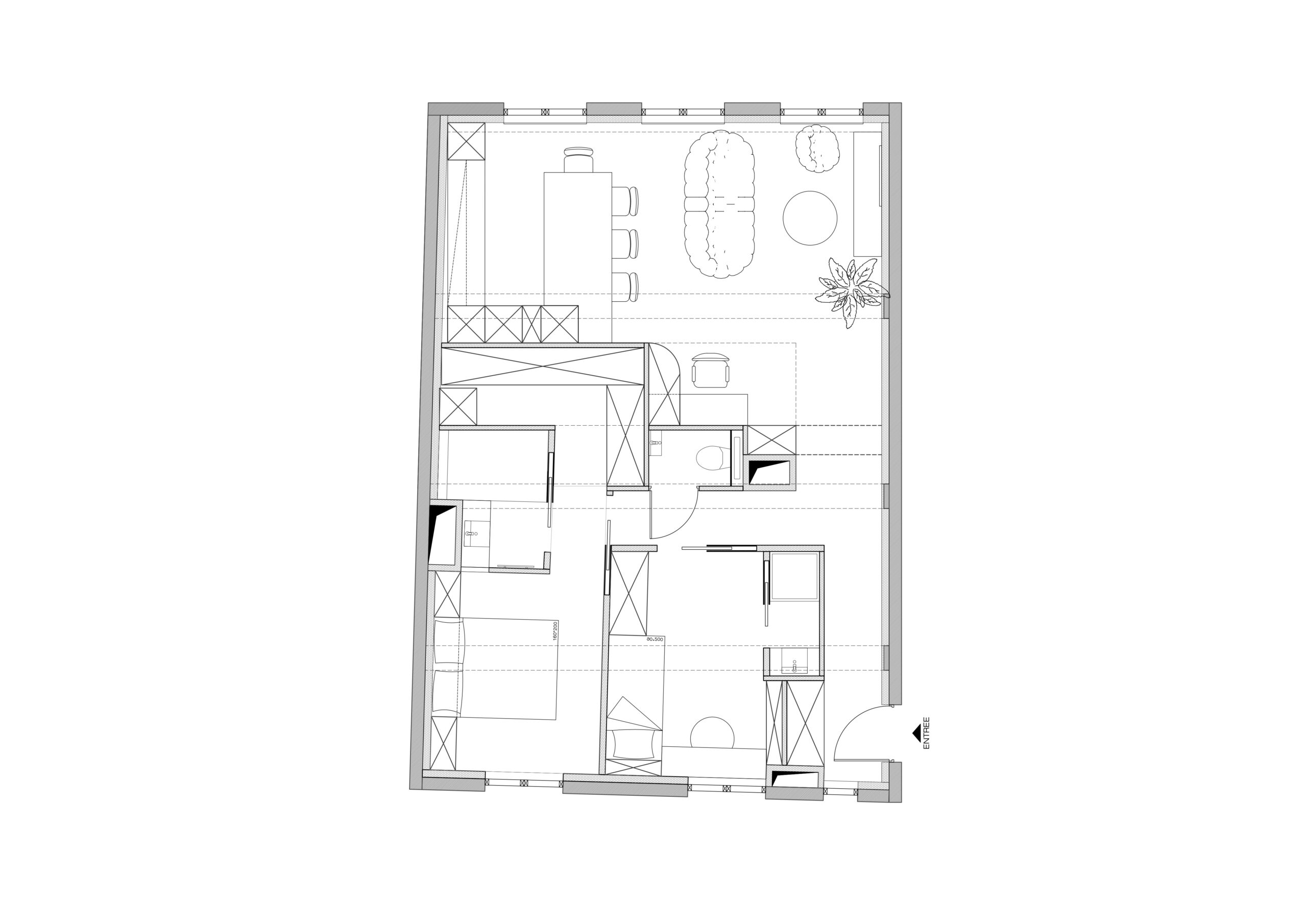
Projet d’aménagement d’un appartement vendu en plateau. Pour ce projet, il y avait tout à créer, une page blanche sans contraintes s’offrait à moi.
Imaginer un intérieur avec du caractère en sublimant les volumes.



Vous avez un projet en tête ?
Chaque projet est unique, tout comme les personnes pour lesquelles je travaille. Mon objectif est de transformer vos idées en réalité, en créant des espaces qui vous ressemblent et dans lesquels vous vous sentez bien. De la conception initiale à la réalisation finale, je suis à vos côtés à chaque étape, pour vous offrir un service personnalisé et sur mesure.