
Projet Inkermann

TYPE DE PROJET : Rénovation d’un appartement
ANNÉE : 2024
LOCALISATION : Lyon 6
SUPERFICIE : 40 m²
CONCEPT : @louisegarnier_archi
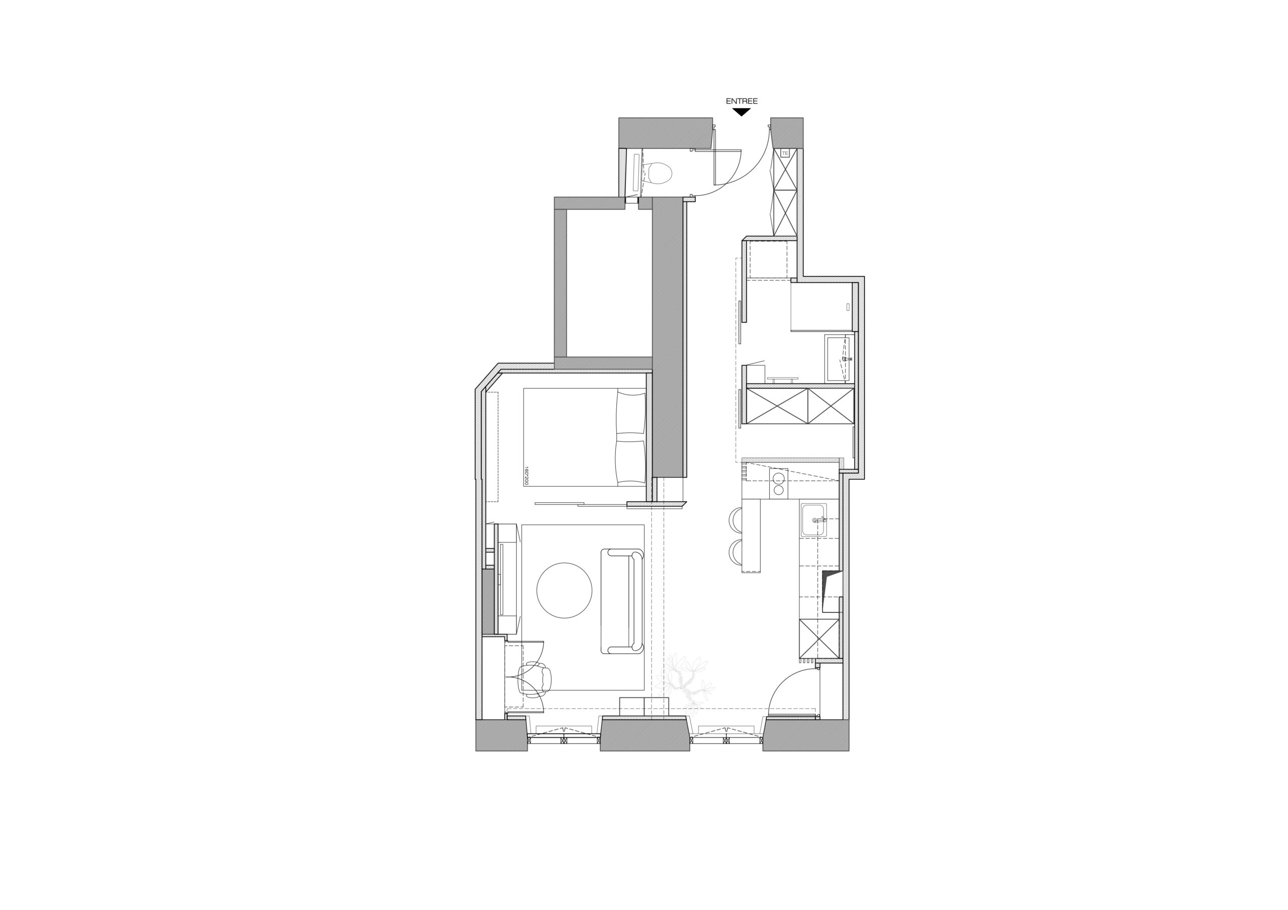
Pour ce projet situé dans le 6ème arrondissement de Lyon, j’ai été sollicitée afin de repenser entièrement un appartement de 40 m².
Dans son état d’origine, la circulation manquait de fluidité et le potentiel de l’appartement n’était pas exploité.
La première étape a donc été de décloisonner complètement l’espace afin de retrouver les volumes bruts et repenser l’organisation des pièces de manière cohérente et optimisée.

Les demandes de la cliente étaient précises :
- une véritable entrée équipée de rangements
- une salle d’eau optimisée intégrant un espace buanderie
- un WC séparé
- un dressing fonctionnel
- une cuisine ouverte sur la pièce de vie
- un espace nuit intégré dans une alcôve et fermé par une verrière coulissante, offrant à la fois intimité et transparence.
Le parquet existant a été rénové afin de préserver l’authenticité et le charme de l’appartement. Par ailleurs, un ancien placard a été repensé et transformé en bureau intégré, permettant de créer un espace de travail discret et pratique sans empiéter sur la surface de vie.
L’ensemble a été pensé pour offrir un intérieur lumineux, fluide et fonctionnel, où chaque m² est exploité intelligemment. Les matériaux, les rangements et la verrière ont été choisis pour allier esthétisme et confort, dans un esprit contemporain et chaleureux.


Vous avez un projet en tête ?
Chaque projet est unique, tout comme les personnes pour lesquelles je travaille. Mon objectif est de transformer vos idées en réalité, en créant des espaces qui vous ressemblent et dans lesquels vous vous sentez bien. De la conception initiale à la réalisation finale, je suis à vos côtés à chaque étape, pour vous offrir un service personnalisé et sur mesure.