
Projet Corneille

TYPE DE PROJET : Rénovation d’un appartement complet
ANNÉE : 2025
LOCALISATION : Lyon 6
SUPERFICIE : 143 m²
CONCEPT : @louisegarnier_archi
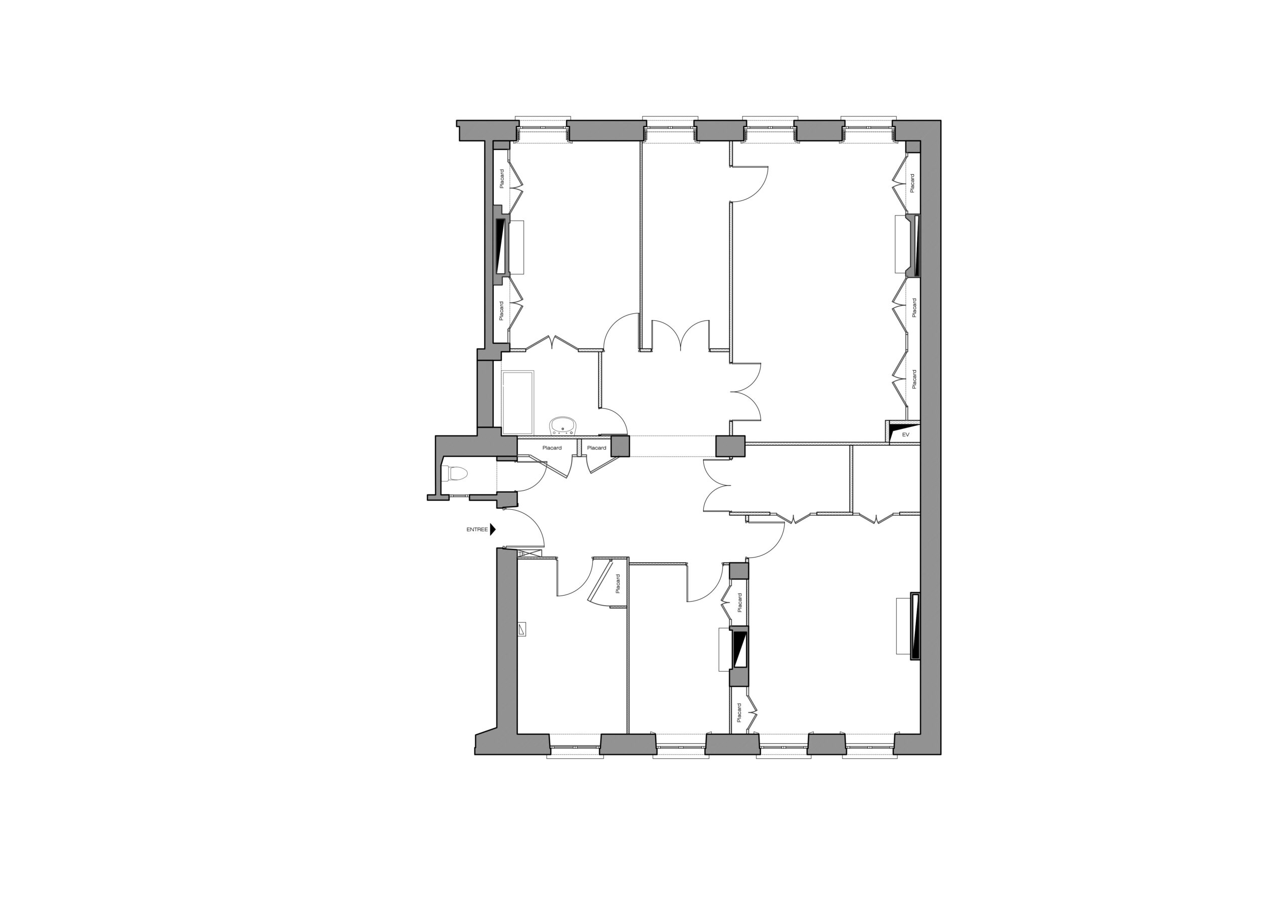
Pour ce projet situé au cœur du 6ème arrondissement de Lyon, les clients m’ont sollicitée afin de repenser la distribution d’un appartement de 143 m², au 2ème étage d’un immeuble ancien au charme typiquement lyonnais.
Leurs souhaits étaient clairs : moderniser l’aménagement tout en conservant une partie du cloisonnement existant, afin de préserver l’esprit du lieu et d’éviter une restructuration totale.

L’objectif principal était de créer un espace fonctionnel, lumineux et chaleureux, capable d’accueillir une famille avec 4 chambres, une salle de bains, une salle de douches et un WC séparé, tout en offrant un grand séjour convivial intégrant l’espace salle à manger.
L’appartement présentait plusieurs atouts à valoriser comme les moulures, la belle hauteur sous plafond et le parquet existant.
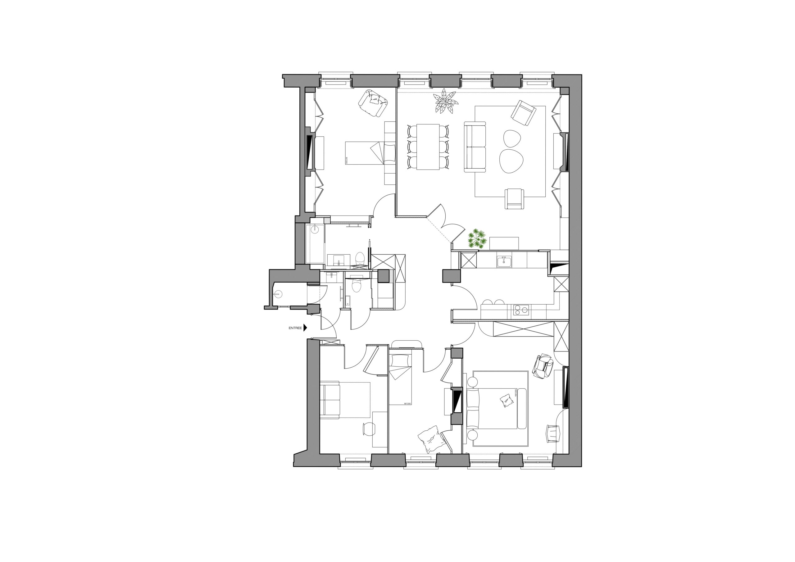
En supprimant une cloison dans le séjour, nous obtenons une pièce de vie généreuse, de plus de 40 m², avec 3 grandes fenêtres.
Une cuisine, initialement fermée et à l’opposé de la pièce de vie, que les clients souhaitaient à proximité du séjour mais isolée tout en conservant une connexion visuelle.
J’ai donc proposé une organisation fluide où le séjour devient le cœur de vie de l’appartement, largement ouvert et baigné de lumière. La cuisine a été pensée comme un espace indépendant, mais décloisonné visuellement grâce à une grande verrière sur mesure, qui apporte à la fois transparence et caractère.
L’entrée a quand à elle été optimisée avec un maximum de rangements, une banquette pour se chausser, une salle d’eau et des wc séparés ont également été implantés.
Le résultat est un intérieur élégant, intemporel et accueillant, parfaitement adapté au mode de vie des clients.


Côté inspiration, le style haussmanien est conservé avec la mise en valeur des moulures existantes et la conservation du parquet et des portes anciennes.
Vous avez un projet en tête ?
Chaque projet est unique, tout comme les personnes pour lesquelles je travaille. Mon objectif est de transformer vos idées en réalité, en créant des espaces qui vous ressemblent et dans lesquels vous vous sentez bien. De la conception initiale à la réalisation finale, je suis à vos côtés à chaque étape, pour vous offrir un service personnalisé et sur mesure.