
Projet Claire

TYPE DE PROJET : Rénovation d’un appartement d’habitation
ANNÉE : 2025
LOCALISATION : Lyon 9
SUPERFICIE : 100 m²
CONCEPT : @louisegarnier_archi
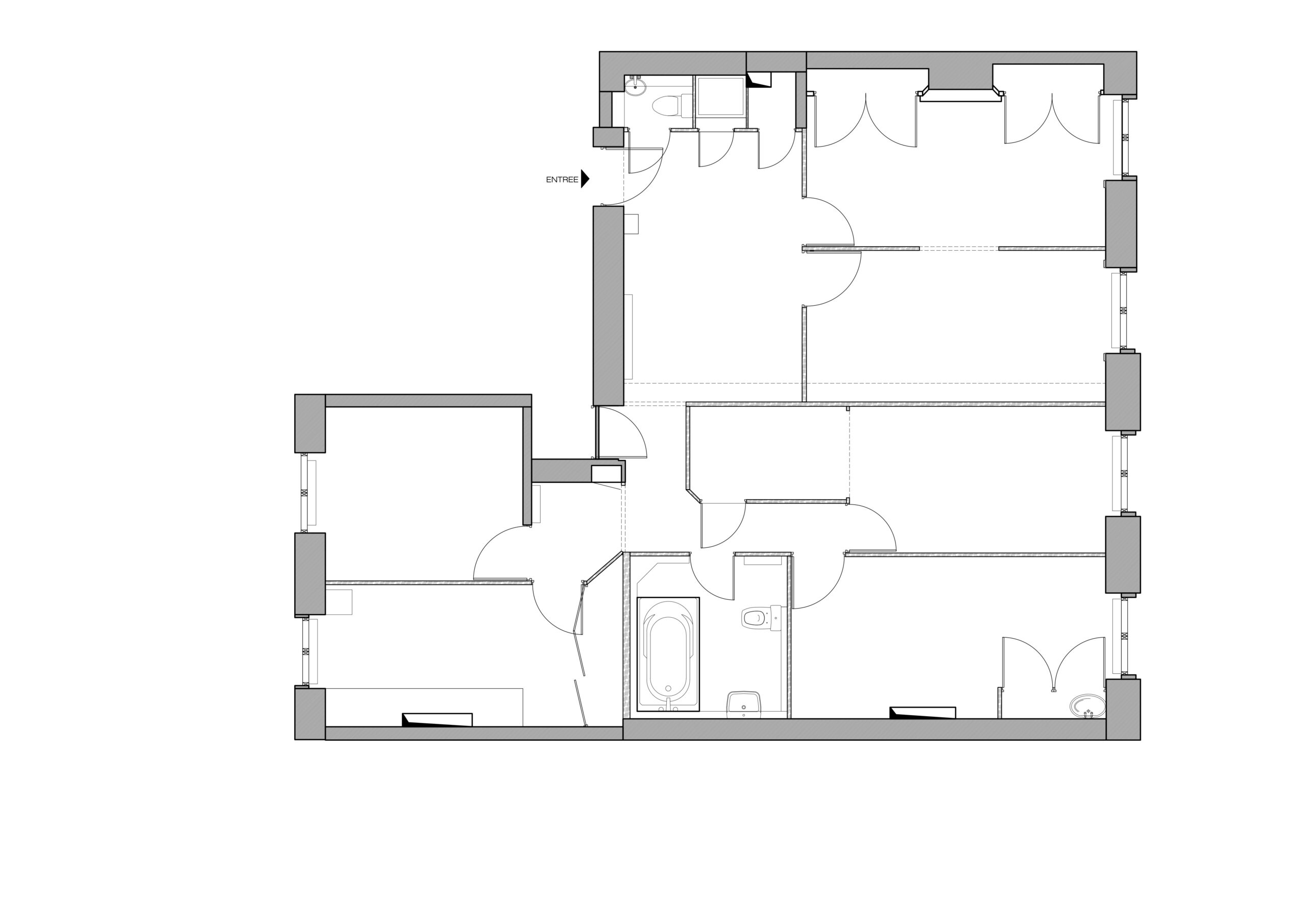
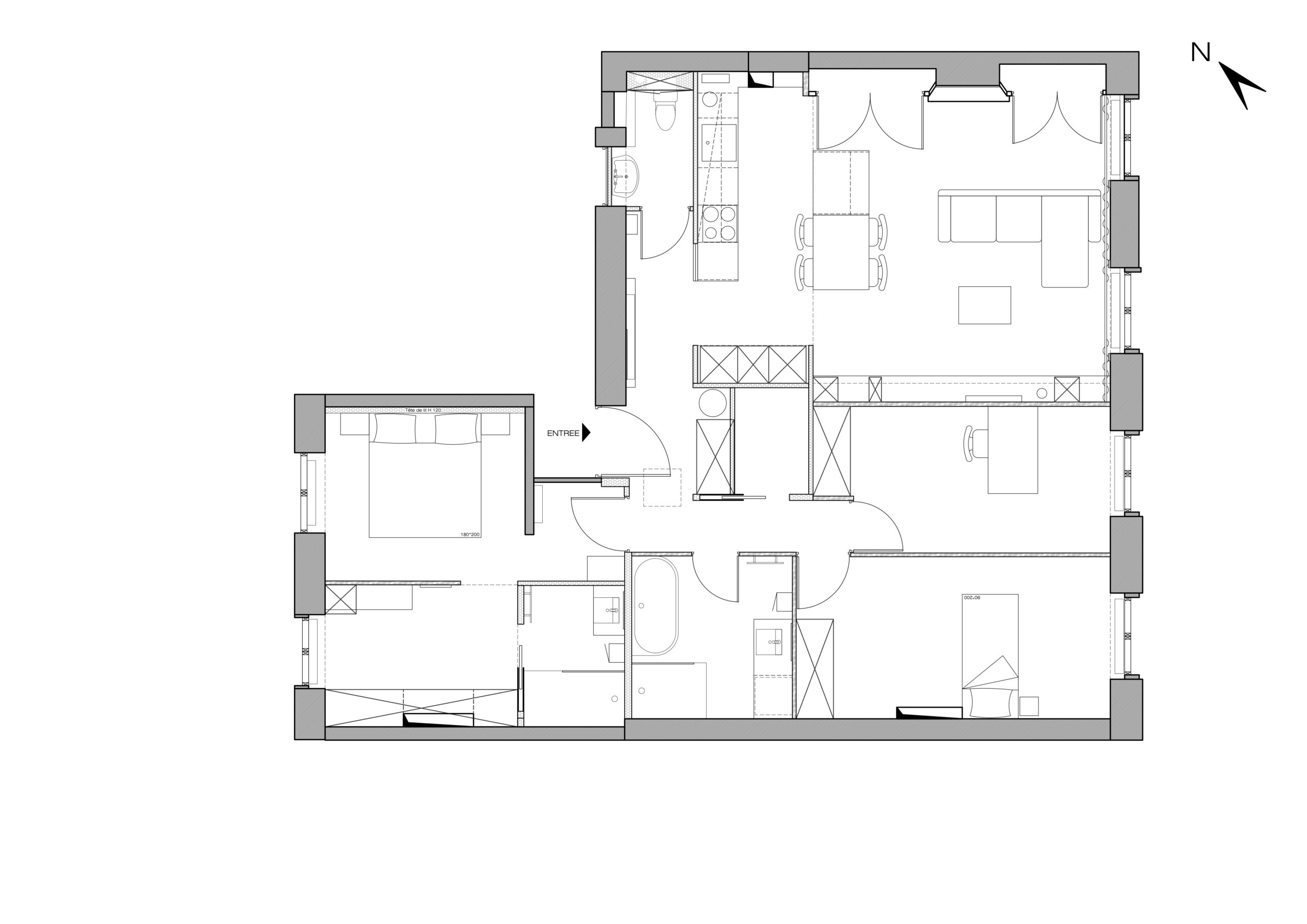
Pour ce projet situé à Lyon 9, les clients m’ont sollicitée afin de repenser entièrement leur appartement et de l’adapter à leur mode de vie. L’objectif était double : optimiser la circulation et redistribuer les espaces pour créer une suite parentale, tout en ouvrant la cuisine sur le séjour afin de profiter d’un grand espace de vie convivial.
L’appartement présentait une particularité rare : trois portes palières d’origine, offrant différentes possibilités d’aménagement. Après réflexion, nous avons choisi de déplacer l’entrée pour fluidifier les circulations et mieux organiser la distribution des pièces.

Le projet s’est articulé autour de plusieurs axes :
Repenser la cuisine, initialement fermée, pour l’intégrer pleinement au séjour et en faire un espace lumineux et ouvert sur la pièce de vie.
- Créer trois chambres, dont une suite parentale avec une salle d’eau entièrement conçue sur mesure.
- Conserver un WC indépendant et rénover la salle de bains, restée à son emplacement initial mais repensée dans ses usages et finitions.
- Multiplier les rangements, afin d’apporter confort et praticité au quotidien sans alourdir l’espace.



Vous avez un projet en tête ?
Chaque projet est unique, tout comme les personnes pour lesquelles je travaille. Mon objectif est de transformer vos idées en réalité, en créant des espaces qui vous ressemblent et dans lesquels vous vous sentez bien. De la conception initiale à la réalisation finale, je suis à vos côtés à chaque étape, pour vous offrir un service personnalisé et sur mesure.